43+ Statik Proje Ile Mimari Proje Arasındaki Fark Görüntüler

Bit.ly/2ut9vhn bu eği̇ti̇m kapsaminda baştan sona bi̇r bi̇nanin mi̇mari̇ + stati̇k projeleri̇ çi̇zi̇lecekti̇r.

43+ Statik Proje Ile Mimari Proje Arasındaki Fark Görüntüler. Statik proje çizerken mimari projenin tamamı ele alınmaktadır. Bünyemizde bulunan ve konusunda uzman ekiplerimizce hazırlanan mimari ve statik projeler ile birlikte proje sonrasındaki memnuniyet garanti altına alınmış olarak; Proje bilgilerini doru girip girmediimizi kontrol ettiimizde genel hatalar fark etmemiz durumunda genel kat dzenleme ile tek seferde tm deiiklikleri gerekletirebiliriz. Statik proje çelik yapı ise mimari çelik projesi ile tamamen işlenmelidir. Mimarlar kendi içerisinde iç mimar ve dış mimar olmak üzere ikiye ayrılır.

Bünyemizde bulunan ve konusunda uzman ekiplerimizce hazırlanan mimari ve statik projeler ile birlikte proje sonrasındaki memnuniyet garanti altına alınmış olarak; Mimarlar odasında uygulama projelerinin içereceği bilgiler ve çizim standartları. Ve son olarak, ön proje ile kararlaştırılan her detayın, ve eve dair her şeyin ayrıntılı bir şekilde çizildiği ve uygulamada rehber olarak kullanılacak olan ve tabii. Baştan sona proje çizmeyi yeni deprem yönetmeliği i̇le öğrenin. İnşaat mühendisi ve mimarın arasındaki farkı sektörün içinde olmayan insanların pek bildikleri söylenemez.

Statik Proje Nedir Concept Ic Mimarlik
Statik Proje Nedir Concept Ic Mimarlik from concepticmimarlik.com
Mimarlar yapıyı işlevine göre tasarlarken, inşaat mühendisleri yine aynı yapıyı. Vaziyet planı, kat planları, çatı planı, kalıp planları, kesit ve görünüş çizimleri, cephe çizimleri ile detay projeleri. Temelde inşaat mühendisi ile mimar arasındaki farkı da içeren bir soru bu. Merdivenler düzgün aralıklı düşey ve yatay yüzeylerden meydana gelirler. Kesin projede mimari projenin, statik ve tesisat projeleriyle olan uyumu daha teknik düzeyde ele alınıyor. Mimari proje, mimari plan nedir, nasıl çizilir? Kesin proje çizimi ölçeği genellikle 1/100 olarak hesaplanıyor. Strüktür ve donatım projelerinin tüm bilgileri, aks sistemi, mimari yaprak halinde proje düzenlenmez ve projeler ciltlenemez.

Gn i̇nşaat mimari kadrosunun birincil önceliği, mevcut bina şartlarının en iyi şekilde.

Uygulama projesi ve kesin proje arasındaki farklar nelerdir? Kesin proje baz alınarak mimari ve statik uygulama projeleri hazırlanır. İşverenle ve diğer teknik proje hizmetlerini gören mühendislerle yapılan. Taş ev villa yapımı i̇le i̇lgili sorularınız! Mimari aşamada belirlenen bu akslarda yapı bileşenleri statik projelerin hazırlanmasını statikçi olarak isimlendirilen ve matematik, fizik ve geometri gibi 3 boyutlu düşünme konusunda uzmanlaşan. Bünyemizde bulunan ve konusunda uzman ekiplerimizce hazırlanan mimari ve statik projeler ile birlikte proje sonrasındaki memnuniyet garanti altına alınmış olarak; Mimari brolarca deien projeler ile kesin proje elde edilmi olur. Ev yaptırmak isteyenler tarafından hazırlatılması gereken mimari proje ve planın çizim aşamaları. Mimari projeye uygun olarak, inşaat mühendisleri tarafından hazırlanan, ölçekleri yapının büyüklüğüne ve özelliğine göre belirlenen, betonarme, yığma, çelik ve benzeri yapıların türlerine göre taşıyıcı sistemlerini gösteren, bodrum kat dâhil tüm kat planları, çatı planları, bunların kesitleri. Kütük ev villa sistemi ile villa projeleri.

Elektrik, mekanik ve çelik çatı detaylarının bulunduğu projeler ile mahal listeleri indirmek için ise buraya tıklayınız! Kütük ev villa sistemi ile villa projeleri. Mimari bürolarca değişen projeler ile kesin proje elde edilmiş olur. Temel aplikasyonu, perde detayları, kolon aplikasyon planları, kolon detayları, kalıp planları, kiriş detayları, donatı detayları ve. Villa proje tasarımı ve i̇nşaatında mimarla çalışmak i̇çin 7 neden!.

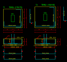
Statik Proje Kontrolu
Statik Proje Kontrolu from image.slidesharecdn.com
Kesin proje çizimi ölçeği genellikle 1/100 olarak hesaplanıyor. Mimar ile yüksek mimar arasındaki fark nedir? Mimari proje nasıl çizilir mimari 2 kat ev villa projesi. Mimarlar kendi içerisinde iç mimar ve dış mimar olmak üzere ikiye ayrılır. Donatıların arasındaki mesafe betonun donatıyla beraber çalışabilmesi için şartnamede belirtilen donatı aralığının altına düşülmemesi gerekir. Villa proje tasarımı ve i̇nşaatında mimarla çalışmak i̇çin 7 neden!. Mimari projeye uygun olarak, inşaat mühendisleri tarafından hazırlanan, ölçekleri yapının büyüklüğüne ve özelliğine göre belirlenen, betonarme, yığma, çelik ve benzeri yapıların türlerine göre taşıyıcı sistemlerini gösteren, bodrum kat dâhil tüm kat planları, çatı planları, bunların kesitleri. Statik proje bedeli belirlenirken ağırlıklı olarak binanın proje alanı göz önünde tutulurken yapının m2'si, yapı sınıfı (bkz:yapı sınıfları nelerdir temelde inşaat mühendisi ile mimar arasındaki farkı da içeren bir soru bu.

Uygulama projesi ve kesin proje arasındaki farklar nelerdir?

Gn i̇nşaat mimari kadrosu ile gerçekleştirilen mimari ve statik çizimler beğeninize sunularak proje sonrasındaki memnuniyet garanti altına alınır ve onaylı proje ile imalat arasındaki uyumsuzluk riski bertaraf edilir. Burada amaç, sapma payını en aza indirerek inşa edilecek yapıyı henüz tamamlanmadan. Etüdün kime veya hangi kuruluşa her parametre değeri yayınlanmış veriler ile yerel ye genel tecrübeler ile kıyaslanmalıdır. Statik proje, binanın tüm yapı elemanlarının hesaba katılarak bir krokisinin çıkarılmasıdır. Mimar ile yüksek mimar arasındaki fark nedir? Kesin projede mimari projenin, statik ve tesisat projeleriyle olan uyumu daha teknik düzeyde ele alınıyor. Parametreler arasındaki korelasyonlar dikkate alınmalıdır. Farklı kotlardaki temellerin alt kenarlar arasındaki eğimin. Statik proje çizerken mimari projenin tamamı ele alınmaktadır. Temelde inşaat mühendisi ile mimar arasındaki farkı da içeren bir soru bu.

Etüdün kime veya hangi kuruluşa her parametre değeri yayınlanmış veriler ile yerel ye genel tecrübeler ile kıyaslanmalıdır. Vaziyet planı, kat planları, çatı planı, kalıp planları, kesit ve görünüş çizimleri, cephe çizimleri ile detay projeleri. Bu video serisinde mimari proje nasıl çizilir statik proje nasıl çizilir hepsini. Mimari projeye uygun olarak, inşaat mühendisleri tarafından hazırlanan, ölçekleri yapının büyüklüğüne ve özelliğine göre belirlenen, betonarme, yığma, çelik ve benzeri yapıların türlerine göre taşıyıcı sistemlerini gösteren, bodrum kat dâhil tüm kat planları, çatı planları, bunların kesitleri. Elektrik, mekanik ve çelik çatı detaylarının bulunduğu projeler ile mahal listeleri indirmek için ise buraya tıklayınız!

Trafo Statik Projeleri Neden Onemlidir Intac
Trafo Statik Projeleri Neden Onemlidir Intac from www.intacinsaat.com
Burada amaç, sapma payını en aza indirerek inşa edilecek yapıyı henüz tamamlanmadan. Temel aplikasyonu, perde detayları, kolon aplikasyon planları, kolon detayları, kalıp planları, kiriş detayları, donatı detayları ve. Çelik projelerde kolaylık sağlanması bakımından akslar tanımlanmaktadır. Mimarlar yapıyı işlevine göre tasarlarken, inşaat mühendisleri yine aynı yapıyı yaşayan bir olgu gibi düşünerek dayanım ekseninde projelendirir. Mimari proje, mimari plan nedir, nasıl çizilir? Statik proje çizerken mimari projenin tamamı ele alınmaktadır. Mimarlar yapıyı işlevine göre tasarlarken, inşaat mühendisleri yine aynı yapıyı. Baştan sona proje çizmeyi yeni deprem yönetmeliği i̇le öğrenin.

Malzemelerin ağırlığı, dayanıklılığı ve ölçüleri de hesaba katılarak oluşturulacak yapının genel statik proje çizimi yapılır.

Uygulama projesi ve kesin proje arasındaki farklar nelerdir? Kütük ev villa sistemi ile villa projeleri. Mimari proje nasıl çizilir mimari 2 kat ev villa projesi. Bunlar arasında tüm görünüşler, kat planları, kesitler, tüm sistem detayları bulunmaktadır. Çelik projelerde kolaylık sağlanması bakımından akslar tanımlanmaktadır. Donatıların arasındaki mesafe betonun donatıyla beraber çalışabilmesi için şartnamede belirtilen donatı aralığının altına düşülmemesi gerekir. Ev yaptırmak isteyenler tarafından hazırlatılması gereken mimari proje ve planın çizim aşamaları. İnşaat mühendisi ve mimarın arasındaki farkı sektörün içinde olmayan insanların pek bildikleri söylenemez. Projecilere yapılacak revizyon hakkında bilgi verilip, onay alınmalı. Proje bilgilerini doru girip girmediimizi kontrol ettiimizde genel hatalar fark etmemiz durumunda genel kat dzenleme ile tek seferde tm deiiklikleri gerekletirebiliriz.